ZMX氣動三通切斷閥采用頂導向結構,配用多彈簧執行機構。具有結構緊湊、重量輕、動作靈敏、流體通道呈S流線型、壓降損失小、閥容量大、拆裝方便等優點。切斷閥接受來自調節儀表的信號,切斷、開啟或改變介質流向,達到對壓力、流量、溫度或液位等工藝參數自動控制。
ZMX氣動三通切斷閥采用頂導向結構,配用多彈簧執行機構。具有結構緊湊、重量輕、動作靈敏、流體通道呈S流線型、壓降損失小、閥容量大、拆裝方便等優點。切斷閥接受來自調節儀表的信號,切斷、開啟或改變介質流向,達到對壓力、流量、溫度或液位等工藝參數自動控制。廣泛應用于石油、化工、冶金、電力、輕工、紡織等各種工業部門的生產過程自動控制和遠程控制系統中。
本系列產品有薄膜式、活塞式兩種。閥體結構有單座、套筒、雙座(二位三通)三種,密封形式有填料密封和波紋管密封兩種,產品公稱壓力等級有PN10、16、40、64四種,公稱口徑范圍DN20~200mm。適用流體溫度由-60~450℃。泄漏量等級為IV級或Ⅵ級。流量特性為快開。
主要零件材料
閥體、密封套筒:HT200、ZG230-450 ZG1Cr18Ni9Ti ZGOCr18Ni12M02Ti
閥芯、閥座:1Cr18Ni9Ti OCr18Ni12M02Ti 1Cr18Ni9Ti堆焊司太萊合金
套筒、閥塞:1Cr18Ni9Ti OCr18Ni12M02Ti 1Cr18Ni9Ti堆焊司太菜合金
填 料:聚四氟乙烯、柔性石墨
波紋膜片:丁腈橡膠夾增強滌綸織物
彈 簧:60Si2Mn
閥桿、推桿:2Cr13、1Cr18Ni9Ti
閥芯、閥塞(軟質件):增強聚四氟乙烯
波紋管:1Cr18Ni9Ti
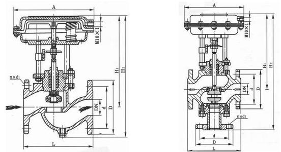
主要構造圖









?公司郵箱登入
?
浙公網安備33032402002441號